杭州叉车
CBD15J-Li4 电动托盘搬运车
创建时间:2025-10-20 15:16
넶浏览量:0
| CBD15/20J-Li4托盘搬运车参数表 | ||||||||||
| 代号 | 公制 | |||||||||
| 特征 distinguishing mark | ||||||||||
| 1.1 | 品牌 | Manufacturer | 加力 | 加力 | ||||||
| 1.2 | 型号 | Model designation | CBD15J-Li4 | CBD20J-Li4 | ||||||
| 1.3 | 动力形式 | Drive unit | 电动 | 电动 | ||||||
| 1.4 | 操作类型 | Operator type | 步行式 | 步行式 | ||||||
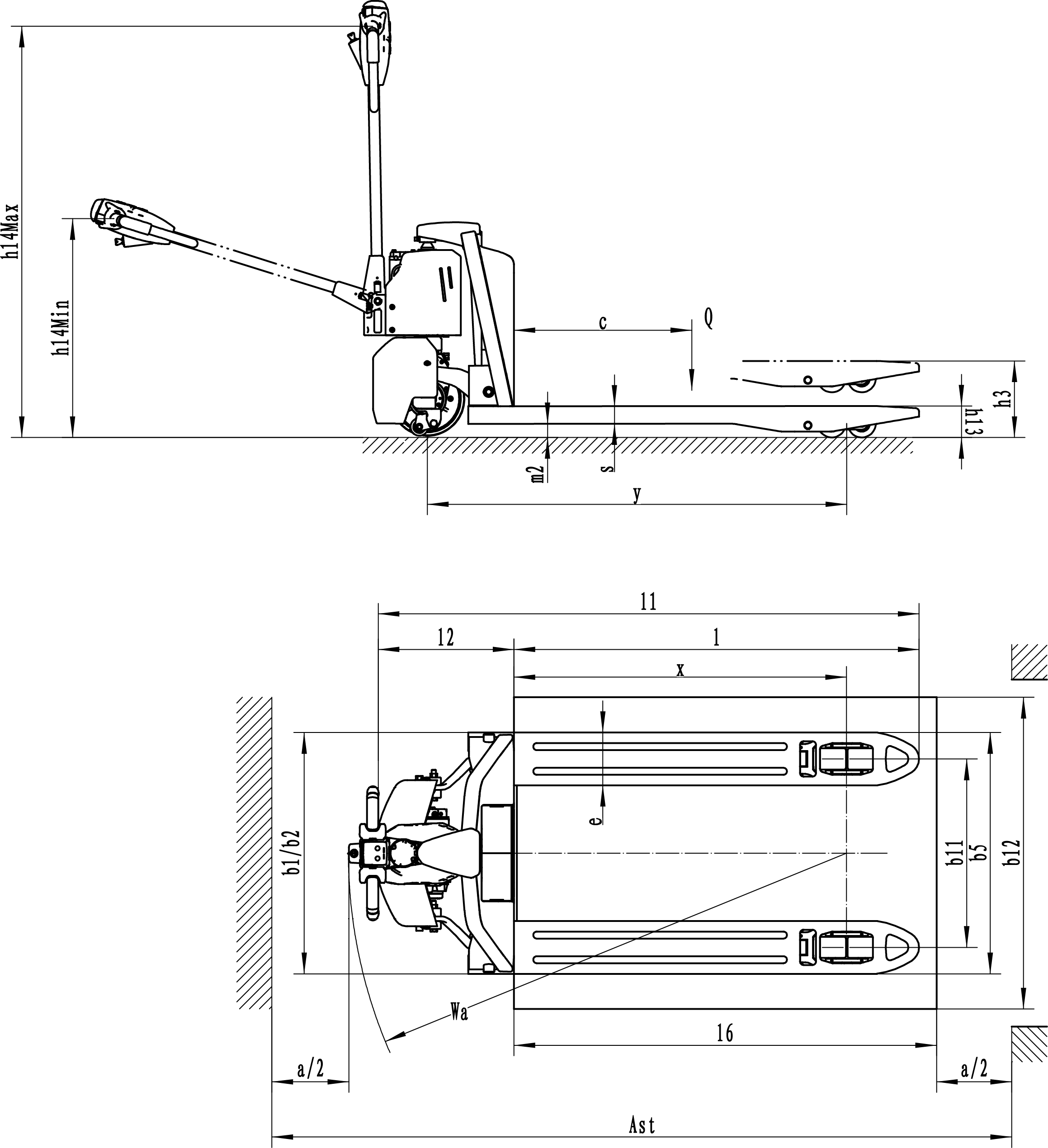
| 1.5 | 载荷 | rated capacity | Q | kg | 1500 | 2000 | ||||
| 1.6 | 载荷中心距 | Load center distance | c | mm | 600 | 600 | ||||
| 1.8 | 前悬距 | Axle centre to fork face | x | mm | 945 | 945 | ||||
| 1.9 | 轴距 | Wheelbase | y | mm | 1192 | 1192 | ||||
| 重量Weight | ||||||||||
| 2.1 | 自重(含电瓶) | Service weight (include battery) | kg | 121 | 122 | 124 | 127 | 128 | 130 | |
| 2.2 | 轴载,满载驱动端/承载端 | Axle loading, laden driving side/loading side | kg | 526/1095 | 526/1096 | 527/1097 | 869/1258 | 869/1259 | 870/1260 | |
| 2.3 | 轴载,空载驱动端/承载端 | Axle loading, unladen driving side/loading side | kg | 96/25 | 96/26 | 97/27 | 99/28 | 99/29 | 100/30 | |
| 轮胎 ,底盘Types,Chassis | ||||||||||
| 3.1 | 轮胎类型,驱动轮/承载轮 | Tyre type driving wheels/loading wheels | 聚氨酯 | 聚氨酯 | ||||||
| 3.2 | 驱动轮尺寸(直径×宽度) | Tyre size, driving wheels(diameter×width) | mm | Ф210x75 | Ф210x75 | |||||
| 3.3 | 承载轮尺寸(直径×宽度) | Tyre size, loading wheels(diameter×width) | mm | Ф80x60 | Ф80x60 | |||||
| 3.5 | 驱动轮,平衡轮/承载轮数量(x=驱动轮) | Wheels, number driving,caster/loading (x=drive wheels) | mm | 1x,-/4 | 1x,-/4 | |||||
| 3.7 | 后轮距,承载端 | Track width,rear,loading side | b11 | mm | 400/535 | 400/535 | ||||
| 尺寸 Dimensions | ||||||||||
| 4.4 | 标配最大起升高度 | Lift height | h3 | mm | 200 | 200 | ||||
| 4.9 | 操作位置手柄杆最小/最大高度 | Height drawbar in driving position min./max. | h14 | mm | 735/1155 | 735/1155 | ||||
| 4.15 | 货叉下降后叉面高度 | Lowered height | h13 | mm | 85 | 85 | ||||
| 4.19 | 整车长度 | Overall length | l1 | mm | 1550 | 1550 | ||||
| 4.20 | 到货叉垂直面的长度 | Length to face of forks | l2 | mm | 400 | 400 | ||||
| 4.21 | 整体宽度 | Overall width | b1/ b2 | mm | 550/685 | 550/685 | ||||
| 4.22 | 货叉尺寸 | Fork dimensions | s/ e/ l | mm | 55/150/1150 | 55/150/1150 | ||||
| 4.25 | 货叉外宽 | Distance between fork-arms | b5 | mm | 550/685 | 550/685 | ||||
| 4.32 | 轴距中心处离地间隙 | Ground clearance, center of wheelbase | m2 | mm | 30 | 30 | ||||
| 4.34.1 | 托盘为 1200宽 × 1000长的通道宽度 | Aisle width for pallets 1000 × 1200 crossways | Ast | mm | 1760 | 1760 | ||||
| 4.34.2 | 托盘为800宽 × 1200长的通道宽度 | Aisle width for pallets 800 × 1200 lengthways | Ast | mm | 1810 | 1810 | ||||
| 4.35 | 最小转弯半径 | Turning radius | Wa | mm | 1355 | 1355 | ||||
| 性能参数 Performance data | ||||||||||
| 5.1 | 行走速度,满载/空载 | Travel speed, laden/ unladen | km/h | 4.2/4.5 | 4.2/4.5 | |||||
| 5.2 | 起升速度,满载/空载 | Lifting speed, laden/ unladen | m/ s | 0.018/0.024 | 0.025/0.046 | |||||
| 5.3 | 下降速度,满载/空载 | Lowering speed, laden/ unladen | m/ s | 0.049/0.032 | 0.055/0.035 | |||||
| 5.8 | 最大爬坡度,满载/空载 | Max. gradeability, laden/unladen | % | 6/15 | 6/15 | |||||
| 5.10 | 制动类型 | Service brake type | 电磁 | 电磁 | ||||||
| 电机,动力源 Electric-engine | ||||||||||
| 6.1 | 驱动电机额定功率 S2 60分钟 | Drive motor rating S2 60 min | kW | 0.75 | 1.0 | |||||
| 6.2 | 起升电机额定功率 S3 15% | Lift motor rating at S3 15% | kW | 0.5 | 0.8 | |||||
| 6.4 | 电瓶电压/标称容量 | Battery voltage/nominal capacity | V/Ah | 24/20 | 24/30 | 24/40 | 48/10 | 48/15 | 48/20 | |
| 6.5 | 电瓶重量 | Battery weight | kg | 5 | 6.5 | 8 | 5 | 6.5 | 8 | |
| 其他数据 Addition data | ||||||||||
| 8.1 | 驱动控制类型 | Type of drive control | 直流 | 直流 | ||||||
| 10.5 | 转向类型 | Steering type | 机械 | 机械 | ||||||
| 10.7 | 噪音等级 | Sound pressure level at the driver’s ear | dB(A) | ≤70 | ≤70 | |||||
| 二维线图 | ||||||||||

